$29
I want this!

Single Story House 10x8 Meter 33x26 Feet

$29

Single Story House 10x8 Meter 33x26 Feet

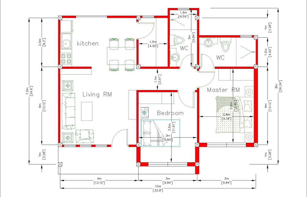
Single Story House 10x8 Ground Floor Plans Has:

Firstly, The car Parking is out side of the house. A nice Terrace entrance in front of the house size 1x4 meters. When we are going from front door, a small Living with Dining table 4x4 meter. Kitchen with dining table 4x2.5 meter  is very perfect for maximum 6 people for this house it is nice and modern. Back terrace it is clean and beautiful. A multi Bathroom size 3x1.4 meters.

The Master Bedroom size is 2.8x3.8 meters, it have a big glass window with a King size bed, Makeup desk and closet and attached Bathroom size 1.5x2.8 meters. Bedrooms 2 size 3x3.6 meter and Storage 1.5x2.5 meters.

The Roof Tile:

Finally, The Shed roof type is made from concrete (Or any tiles available in your country) that cover above Gypsum board ceiling . It is make the house look simple and modern.


Exterior Single Story House 10x8:

Similarly, to the roof border color we choose a bite dark and light color combination together with a big glass door and window to get the house look so beautiful and Modern house.


House Short Description:

-Out side Car Parking and garden

-Living room,

-Dining room

-Kitchen

-2 Bedrooms, 2 bathrooms

-Storage

-washing room

PLEASE MAKE SURE YOU HAVE CHECK the free sample plans

Buy this house plan:

This is a PDF Plan available for Instant Download.

2-Bedrooms 2-Baths home with mini washer/dryer room.

Building size: 10 meter wide, 8 meter deep 33x26 Feet

Roof Type: Terrace roof (cement concrete or other supported type)

Foundation: Concrete or other supported material

For the reverse plan, please see other Model.

PLANS INCLUDE:

Footing, Beam, Column Location plan

Exterior / Interior wall Dimension Plan

Roof Beam Plan

Roof Plan

Elevations plans

1 Cross Section plans

You are purchasing the PDF file for this plan. Print it out whenever you like, as many times as you like.

Plan prints to A4 paper.

CUSTOM PLANS:

Unfortunately I'm unable to do custom plans at this time.

DISCLAIMER:

These plans were produced by myself and were not prepared by nor checked by a licensed architect and/or engineer.

I do not represent nor imply myself to be a licensed architect and/or licensed engineer.

Enjoy these plans but use them at your own discretion.

Delivery Instant Download

Your files will be available to download once payment is confirmed.

I don't accept returns, exchanges, or cancellations. But please contact me if you have any problems with your order.


I want this!

You'll get PDF, AutoCad, and Sketcup files.

Instant download
29$
Powered by